O nama
Arhitektonski Studio Bašić
Studio Bašić d.o.o. pruža sveobuhvatne usluge arhitektonskog projektiranja, 3D vizualizacije, energetskog certificiranja, legalizacije objekata, etažiranja, sudskog vještačenja i procjena.

Nalazimo se u Puli ali usluge pružamo na području cijele Hrvatske.
Naši se projekti temelje na inovativnim idejama, prilagođenim vašim željama i uvjetima lokacije, uz najviše standarde kvalitete i sigurnosti.
Svakom se projektu maksimalno posvećujemo, bez obzira radi li se o projektiranju manje obiteljske kuće ili većeg projekta, hotela, trgovačkih objekata itd. Sa svim klijentima ostvarujemo partnerski odnos i poštujemo dogovorene rokove.
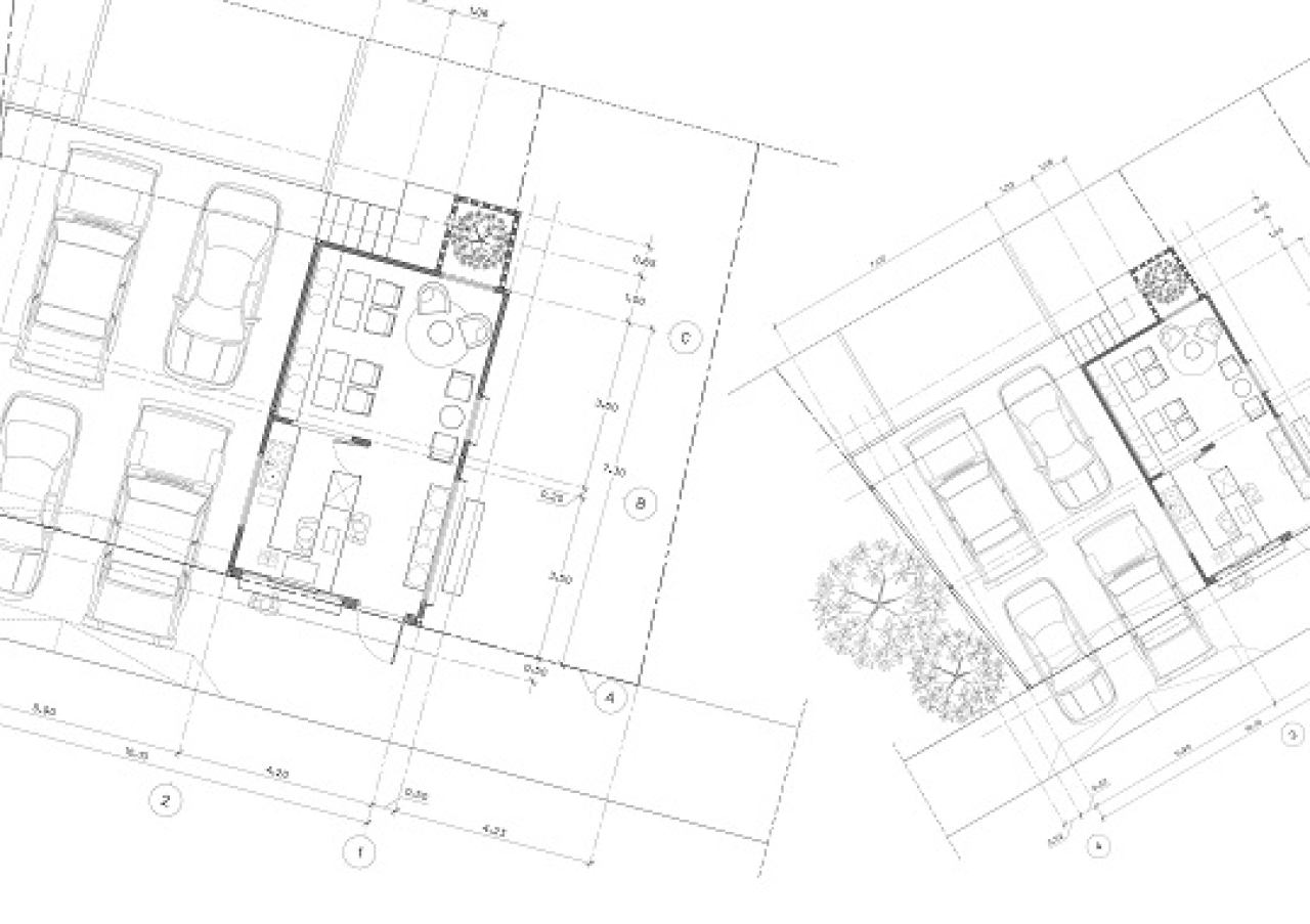
Arhitektonsko projektiranje i dizajn
Specijalizirani smo u projektiranju objekata svih vrsta i namjena.
Naš stručan i kreativan tim ima višegodišnje iskustvo u projektiranju obiteljskih kuća, kuća sa bazenom, poslovnih objekata, stambenih zgrada, prizemnica, kao i stambeno-poslovnih građevina.

Naše usluge obuhvaćaju arhitektonsko snimanje, izradu idejnih rješenja i projekata te izradu glavnog projekta.
Kod izrade svih projekata vodimo se željama investitora prema kojima kreiramo najbolja rješenja koja zadovoljavaju najviše funkcionalne i estetske standarde.
Izrada troškovnika
Arhitektonski Studio Bašić pruža uslugu izrade troškovnika kako bi se izbjegli mogući neplanirani troškovi.
Za sve informacije vezane uz izradu troškovnika, dogovorite sastanak ili zatražite ponudu putem obrasca za upit.
Djelatnosti
- Arhitektonski studio
- Arhitektonsko projektiranje
- Izrada energetskih certifikata
- Legalizacija objekta
- Etažiranje
- 3D vizualizacije
- Izrada troškovnika
- Sudsko vještačenje i procjene
Proizvodi i usluge
Izrada energetskih certifikata
Ovlašteni smo za izdavanje energetskih certifikata, klijentima nudimo brzu i ažurnu izradu certifikata za zgrade, kuće, stanove i ostale objekte.
Energetski certifikat potreban je kod dobivanja uporabne dozvole stambenih zgrada te kod prodaje i najma nekretnina.

Cijena energetskog certificiranja ovisi o veličini, vrsti i namjeni objekta. Za sva pitanja i izradu ponude, slobodno nas nazovite!
Legalizacija postojećih objekata
Pružamo usluge izrade dokumentacije za nadopunu zahtjeva za legalizaciju nezakonito/bespravno sagrađenih objekata.
Izrađujemo elaborat sa svim potrebnim stavkama, od arhitektonske snimke izvedenog stanja do izjave o mehaničkoj otpornosti, a prikupljenu dokumentaciju predajemo uredu za graditeljstvo.
Stojimo na raspolaganju za sve dodatne informacije i pitanja, nazovite nas ili nam pošaljite upit.
Arhitektonska 3D vizualizacija i fotomontaže
3D vizualizacija postala je standard u gradnji novih ili renovaciji postojećih objekata. Klijentima pružamo profesionalnu uslugu arhitektonske 3D vizualizacije koja omogućuje precizan i realni prikaz projekta i prije početka gradnje.
Izrađujemo fotorealistične prikaze arhitektonskih projekta interijera i eksterijera te 3D tlocrta.
3D vizualizacije danas su jednako korisne većim investitorima kod gradnje većih stambenih i poslovnih objekata, kao i privatnim osobama za gradnju i uređenje obiteljskih kuća i stanova.
Zapratite nas i na Studio Bašić Facebook stranici gdje redovito objavljujemo aktualne projekte!

